CASA M&I
Una vivienda introspectiva y eficiente en Miranda de Arga, Navarra
En un contexto de crecimiento urbano inacabado en el sureste de Miranda de Arga (Navarra), se plantea una vivienda unifamiliar como alternativa tipológica a las tradicionales viviendas entre medianeras del entorno. El proyecto, concebido como segunda residencia para una familia vinculada a la localidad, se materializa en plena pandemia, ejecutado por un constructor local, y parte de una reflexión sobre el habitar contemporáneo, desde una aproximación sencilla, eficiente y consciente del lugar.
La intervención se ubica en una urbanización parcialmente consolidada del sureste del municipio, en una parcela resultante de la agregación de dos solares estrechos (5,8 m de ancho por 17,4 m de fondo cada uno), pertenecientes a un desarrollo de viviendas en hilera cuya construcción quedó incompleta. La fachada principal de la vivienda se dispone con orientación sureste hacia el jardín privado, protegido del viento dominante (cierzo) por la propia volumetría urbana.
La localidad cuenta con apenas 900 habitantes, forma parte de la comarca Ribera Arga-Aragón, en la merindad de Olite, y conserva un tejido urbano tradicional ligado al río que le da nombre. En este contexto se inscribe una propuesta que busca establecer una relación directa entre arquitectura, territorio y modos de vida, repensando la vivienda rural desde claves contemporáneas.
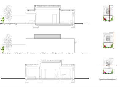
La vivienda se desarrolla íntegramente en planta baja, sin barreras arquitectónicas, siguiendo una geometría casi cuadrada de 11,8 m de lado, que permite una organización compacta y eficiente. El corazón del proyecto es un espacio central a doble altura —el verdadero pulmón de la casa—, que articula las estancias sociales (estar, comedor, cocina) y se abre mediante grandes paños acristalados al porche y al jardín.
Desde este núcleo central se distribuyen los espacios serviciales con funciones más específicas —dormitorios, estudio, zonas de descanso— que se resuelven con luz natural tamizada, favoreciendo un ambiente sereno e introspectivo. Los espacios auxiliares (aseo, lavado, almacenamiento) se integran con discreción, aportando funcionalidad sin interrumpir la claridad espacial del conjunto.
El diseño parte de una mirada sensible al entorno inmediato y a las condiciones de la parcela, y se traduce en una propuesta arquitectónica de lectura clara, sin artificios. La distribución busca minimizar las superficies de circulaciones.
La vivienda se proyecta bajo criterios de alta eficiencia energética y bajo consumo, integrando soluciones pasivas y activas que reducen su demanda energética. La compacidad del volumen y la orientación sur del espacio principal permiten un buen aprovechamiento solar en invierno, mientras que los elementos constructivos aseguran un comportamiento térmico adecuado durante todo el año.
El equipo que ha desarrollado Proyecto y Obra está formado por: Daniel Azpilicueta, arquitecto paisajista; Eduardo Ozcoidi, consultor de estructuras; Carolina Abrego y Maria Navarro, aparejadoras; Xabier Eskisabel, arquitecto colaborador e infografías.
Fotógramo: J. Cutillas






















